Nice Views Of The Bay

WE ARE ACTIVE FOR APPRAISALS AND INSPECTIONS.

A leisurely 500m stroll will have you at the waters edge to swim, explore or just relax with a book.

Take advantage of this blank canvas with which to design your ideal home overlooking the bay and an easy 10 minute walk to the local Primary School, sporting facilities and San Remo's foreshore shopping precinct.

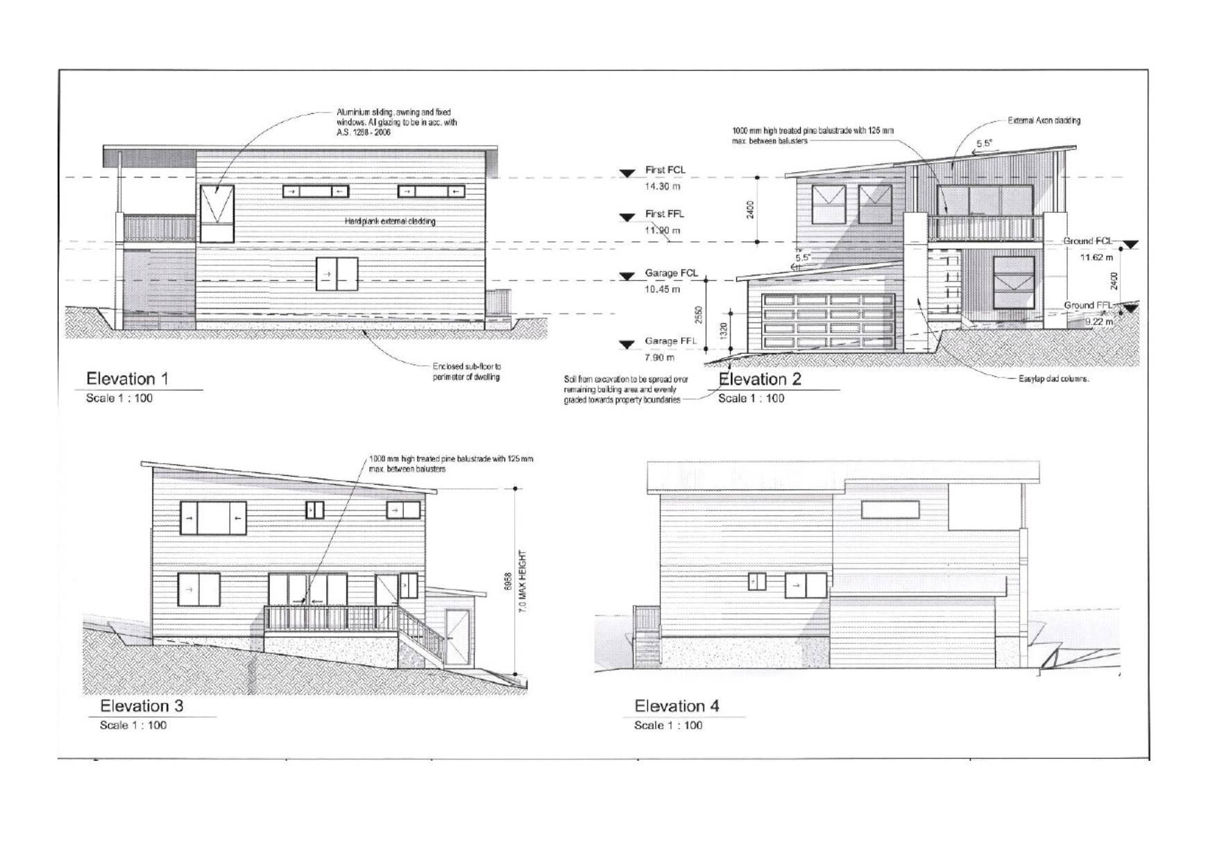
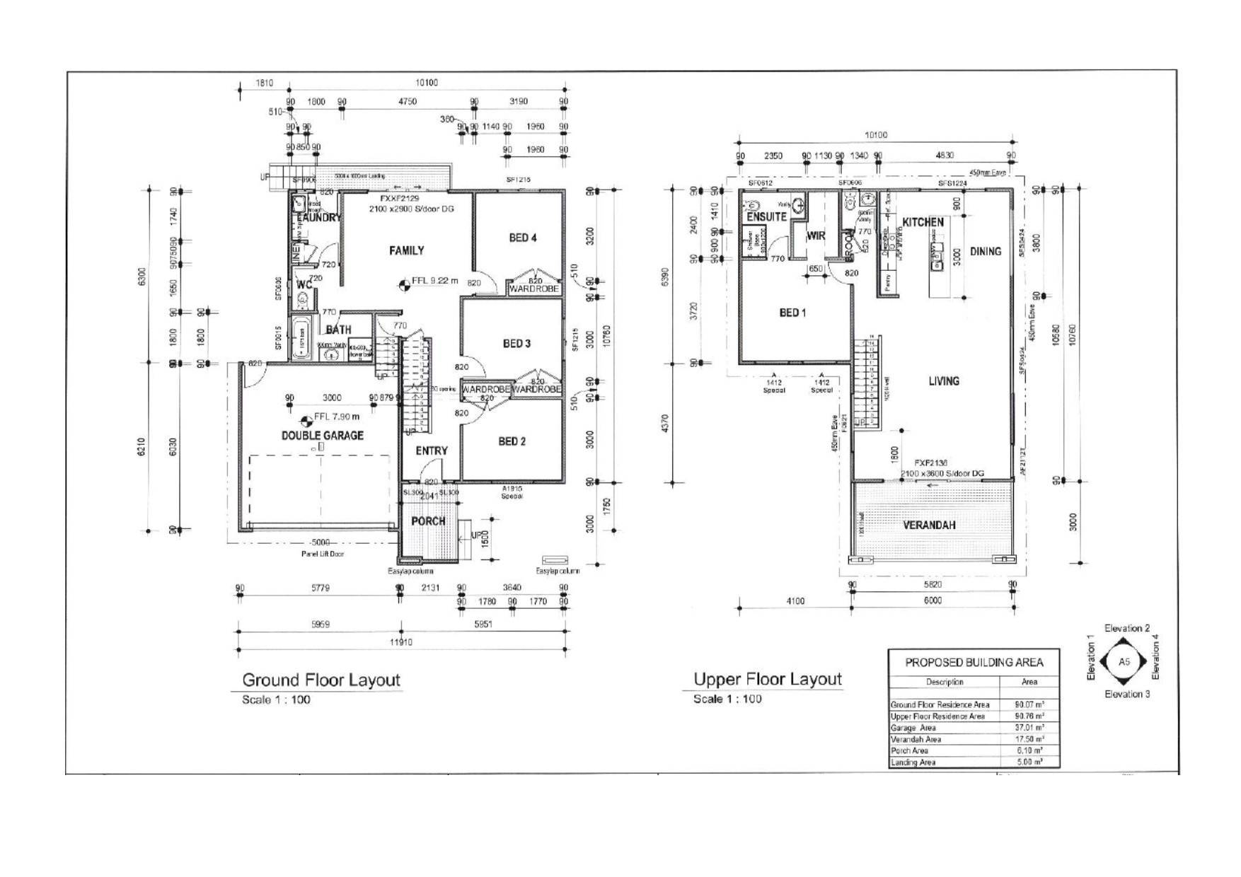
A site specific modified "Archer" plan was prepared by Coldon Homes in January 2019. For approx. $320,000 (obviously this now will be subject to current prices).  This Coldon Home is idealy suited to capture the best aspects of the site and makes an ideal house and land combo at an affordable price of around $660,000 with a brand new home in a prime location the end result.

San Remo is a renowned fishing Village and highly sought after holiday destination.  The gateway to Phillip Island with all year round attractions to suit the whole family.

You may also view this property on www.yourlandshop.com.au

Disclaimer - We have obtained all information in this document from sources we believe to be reliable. However, we cannot guarantee its accuracy. Prospective purchasers are advised to carry out their own investigations. www.1stre.com.au

612 m2
Address 45 Penniwells Drive, San Remo
Price SOLD
Property Type Residential
Property ID 2039
Category Vacant Land
Land Area 612 m2

Agent Details

Sharon Wintle photo

Sharon Wintle

0405 575 332
View Profile