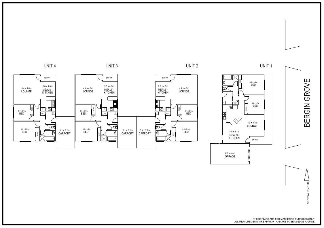
UNIQUE BLOCK OF 4 X 2 BEDROOM UNITS

Heartland position on a 1077m sq block   Late 90’s Build – Comfortable and Roomy

2-bedroom, family living zone, open plan kitchen and dining with ample bench and cupboard space. Single family bathroom and separate laundry. 3 x Carports and 1 Garage. Personal clothes line and well-established gardens.

All Units are occupied: -

No.1   1 Year from 2nd February 2018

No.2   Month to Month

No.3  3 Years from 11th April 2018

No.4  12 month lease effective 23rd October 2018

 Gross Annual Rental = $48,800             Note: - Four Titles

ALL INSPECTIONS ARE STRICTLY BY APPOINTMENT

 Disclaimer - We have obtained all information in this document from sources we believe to be reliable. However, we cannot guarantee its accuracy. Prospective purchasers are advised to carry out their own investigations. www.1stre.com.au

8 4 8 1,077 m2
Address 39 Bergin Gr, San Remo
Price SOLD
Property Type Commercial
Property ID 1814
Category Other
Land Area 1,077 m2
Office Area 1m2

Agent Details

Sharon Wintle photo

Sharon Wintle

0405 575 332
View Profile